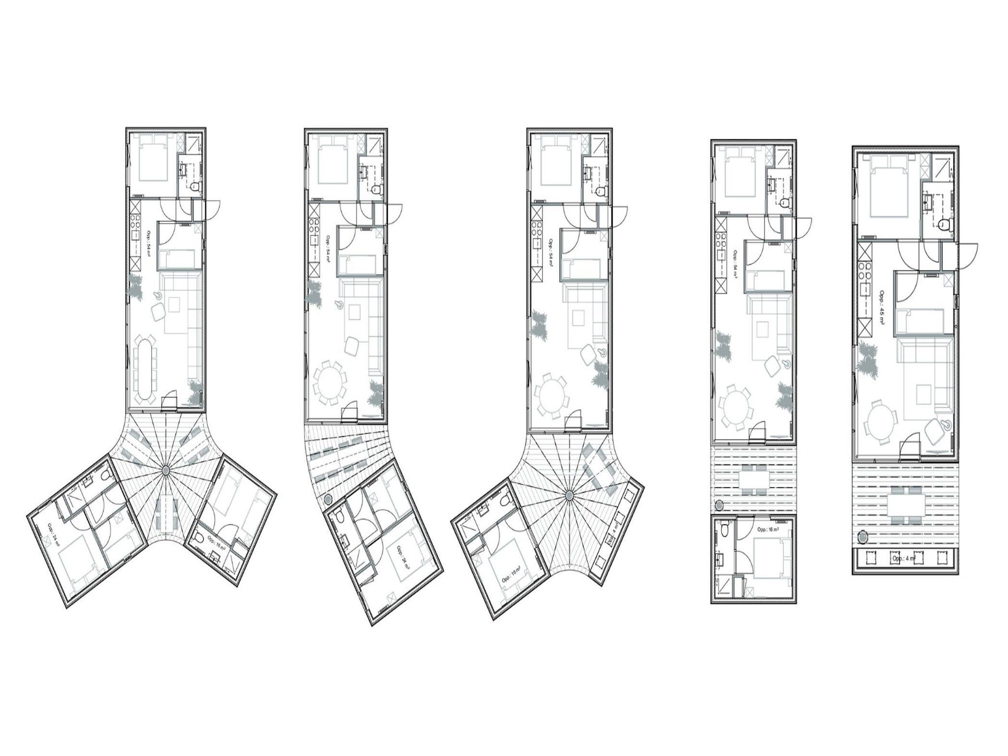
Groot Vakantiehuis
De Steppe 12 pax - 1 - hoofdafbeelding