Omgeven door open weilanden, rustige bossen en het zachte ritme van het Brabantse platteland, is dit moderne vakantiehuis in Ulicoten perfect voor gezinnen en groepen die op zoek zijn naar ruimte, stijl en sereniteit. Duurzaamheid staat centraal in het ontwerp van de villa, die naadloos opgaat in de natuur en tegelijkertijd het comfort en de kwaliteit van een luxe boetiekhotel biedt. Hier vertraagt de dag, spelen kinderen vrij buiten en worden de avonden in een warme en rustige omgeving doorgebracht.
Het huis biedt plaats aan maximaal acht gasten en is ideaal voor gezinnen met kinderen, natuurliefhebbers en designbewuste reizigers die comfort waarderen zonder de drukte. Binnen heerst een lichte en uitnodigende sfeer, met warme natuurlijke tinten en zorgvuldig gekozen meubels. De open keuken is volledig uitgerust voor gezamenlijke maaltijden, terwijl de woon- en eetkamer uitnodigt tot lange gesprekken, gezelschapsspelletjes en ontspannen familiemomenten. Comfortabele slaapkamers zorgen voor een goede nachtrust en de overdekte veranda nodigt uit om te genieten van vogelgezang tijdens het ontbijt of een diner bij zonsondergang in de buitenlucht.
Stap naar buiten en ontdek waarom deze locatie een verborgen parel is. Baarle-Nassau ligt op slechts enkele minuten afstand voor de dagelijkse boodschappen, bakkerijen, cafés en lokale markten. Gezinnen zullen genieten van nabijgelegen attracties zoals Speelboerderij de Vossenberg, terwijl natuurliefhebbers Kempens Landschap – Wortel-Kolonie kunnen verkennen voor fiets- en wandelavonturen. Dagtrips naar Tilburg of Antwerpen bieden cultuur en winkelmogelijkheden, terwijl de omliggende bossen en het platteland perfect zijn voor rustige wandelingen, fietstochten en onbezorgde momenten samen.
Lees meer
Vakantiehuis in Ulicoten voor 8 personen
"De Steppe 8 pax - 13"
vanaf € 146
per nacht
Gratis annuleren tot 43 dagen van tevoren
- Voor de annulering tot en met de 43ste dag voor de afgesproken aankomst: 0% van de huur
- In geval van annulering van 42 tot en met 29 dagen voor aankomst: 40% van de huur.
- In geval van annulering van 28 tot en met de laatste dag voor de overeengekomen huurperiode 90% van de huur
- 100% van het bedrag wordt in rekening gebracht voor latere annulering of niet-verschijnen.
Aankomst
Selecteer datum
Vertrek
Selecteer datum
Selecteer uw datums
Kies aankomst- en vertrekdatum om beschikbaarheid en prijzen te bekijken
Veelgestelde vragen
-
- Voor de annulering tot en met de 43ste dag voor de afgesproken aankomst: 0% van de huur - In geval van annulering van 42 tot en met 29 dagen voor aankomst: 40% van de huur. - In geval van annulering van 28 tot en met de laatste dag voor de overeengekomen huurperiode 90% van de huur- 100% van het bedrag wordt in rekening gebracht voor latere annulering of niet-verschijnen.
Veilig betalen met
iDEAL
Visa
Mastercard
PayPal
Bancontact
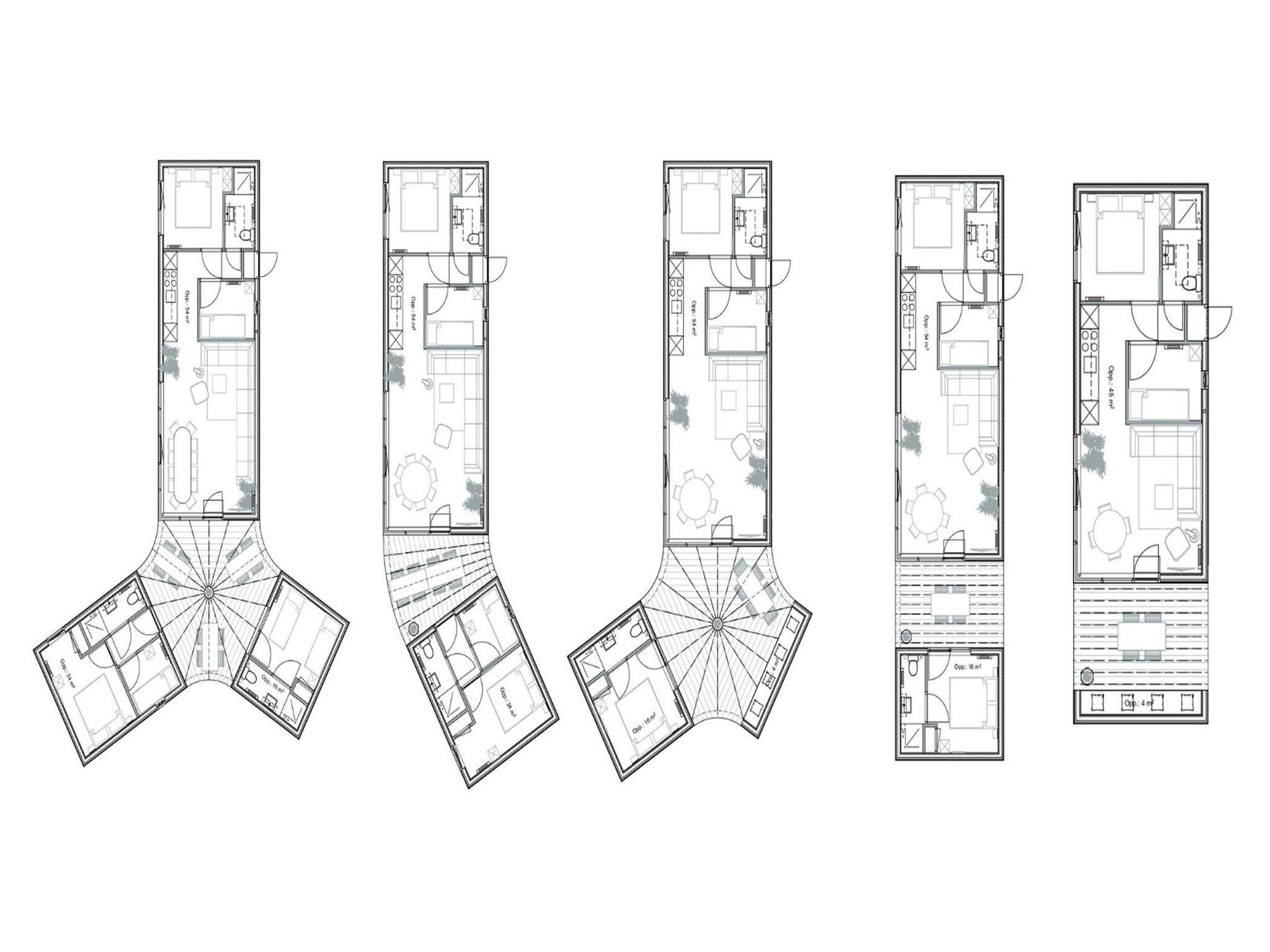
Indeling
Begane grond
open keuken:
waterkoker, fornuis, koffiezetapparaat, combimagnetron, koel-/vriescombinatie
woon/eetkamer:
TV, eettafel, zithoek
slaapkamer:
2-pers. bed of 2x1 pers. Bedden
slaapkamer:
stapelbed
badkamer:
douche, wastafel, toilet
veranda:
zithoek, fornuis
Algemeen: slaapkamer(stapelbed), slaapkamer met badkamer(2-pers. bed of 2x1 pers. Bedden, douche, wastafel, toilet), hottub, sauna
Voorzieningen
Keuken & Huishouden
- Vaatwasser
Afstanden
Meer
15,2 km
Bakkerij
3,5 km
Levensmiddelen
3,4 km
Bushalte
3,3 km
VVV
3,4 km
Kaart laden...
Legenda
Vakantiewoning
Uitjes
Water
Natuur
Cultuur
Entertainment
Gastenboek laden...
Meer vakantiehuizen ontdekken?
Bekijk alle accommodaties in Noord-Holland of vergelijkbare huizen voor 8 personen.