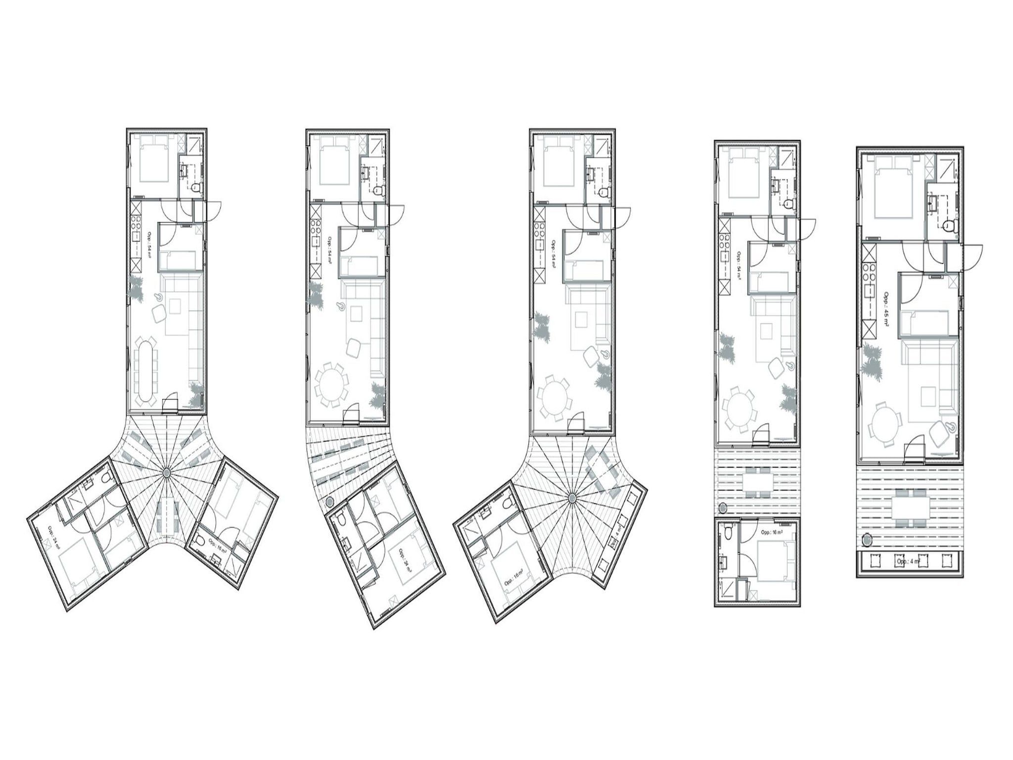
Groot Vakantiehuis
De Steppe 8 pax - 11 - hoofdafbeelding