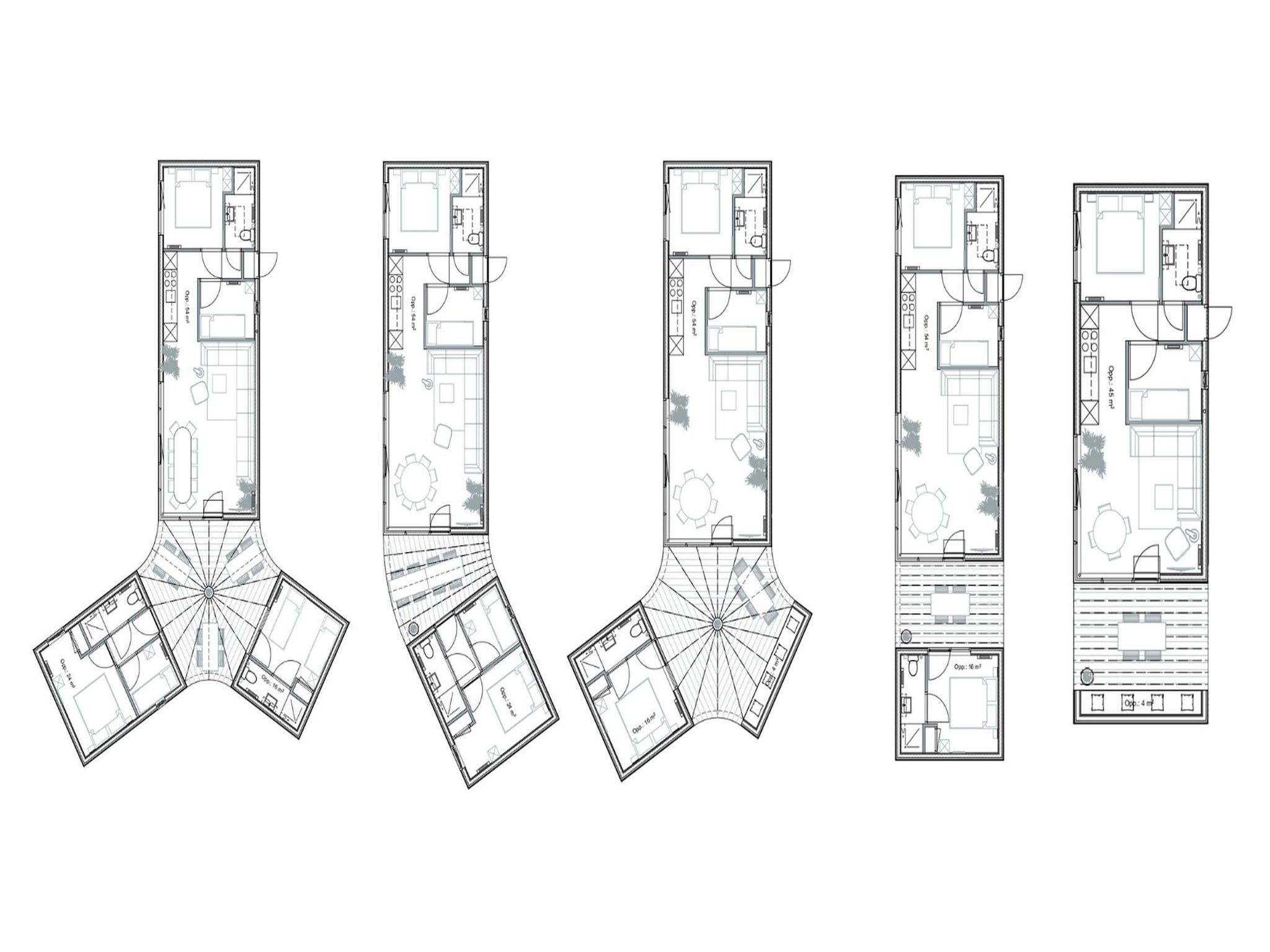
Groot Vakantiehuis
De Steppe 8 pax - 10 - hoofdafbeelding