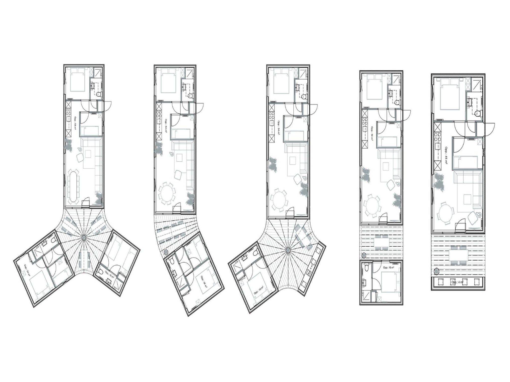
Groot Vakantiehuis
De Steppe 8 pax - 1 - hoofdafbeelding